0

Lieblingsprodukte:

0
  • Sie haben keine Artikel in Ihrer Merkliste.

+421 948 049 158(Mo-Fr, 8-16:00 Uhr)
Menü

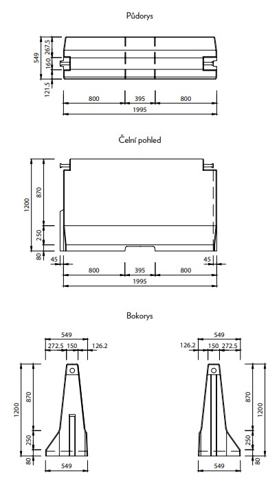
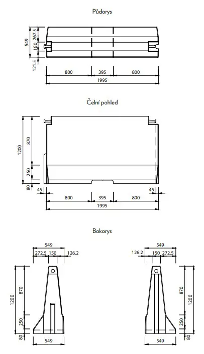
Einseitige Betonschutzplanke TYP120, verkürzt – Mittelstück, 2000×549×1200 mm

Code: CB-300002_120
Breite (mm) 549
Gewicht (kg) 1672
Höhe (mm) 1200
Länge (mm) 2000
Material Beton
Preis mit MwSt. 0,06 
0,05 
ZUM WARENKORB (Stk.):

Produktbeschreibung

Die einseitige Betonschutzplanke TYP100 wird aus hochfestem Porenbeton der Festigkeitsklasse C45/55 gefertigt und erfüllt die Anforderungen der Expositionsklassen XF4, XD3 gemäß EN 206-1.

Die Elemente sind in naturgrauer Betonfarbe oder in gelb-schwarz schraffierter Ausführung erhältlich.

Eigenschaften und Einsatzbereiche

  • dauerhaftes, modernes und hochwirksames Mittel zur Fahrwegkorrektur

  • verhindert das Überfahren der Mittellinie oder das Verlassen der Fahrbahn

  • geeignet für dauerhafte oder temporäre Installationen

  • einzelne Stahlbetonelemente sind gelenkig verbunden und bilden so ein statisch tragendes Kettenglied

Die Schutzplanken werden standardmäßig mit einer Höhe von 1.000 mm produziert, wahlweise in einseitiger oder beidseitiger Ausführung.
Es handelt sich um ein Straßenrückhaltesystem nach EN 1317-1 und TKP Kap. 11.

Die Betonschutzplanke ist in die Funktionsklasse H3 eingestuft, was der Rückhaltestufe gemäß EN 1317-2 entspricht. Damit zählt sie zu den sichersten und effizientesten Systemen auf dem Markt.

Einbau und Montage

  • Einhaltung der Vorgaben der Straßenbaubehörden (am Anfang und Ende jeder Schutzkette sind Rampenelemente vorzusehen).

  • Geeignete Montageflächen: Fahrbahnen, Gehwege, befestigte Parkplätze sowie unbefestigte oder mechanisch stabilisierte Oberflächen.

  • Verlegung erfolgt in der Regel direkt vom Lkw mit Kran oder Gabelstapler.

  • Hebevorgang über Tragschlaufen in M16-Montageankern.

  • Verbindung der Elemente mit mitgelieferten Kupplungen und Schrauben.

  • Montageanker ermöglichen die Befestigung zusätzlicher Handlaufgriffe.

  • An Sonderschienen können auch Werbeschilder oder Zusatzmodule angebracht werden.

Brauchen Sie Hilfe bei der Auswahl?

Rufen Sie uns gerne an

+421 948 049 158 (Mo-Fr, 8-16:00 Uhr)