0

Lieblingsprodukte:

0
  • Sie haben keine Artikel in Ihrer Merkliste.

+421 948 049 158(Mo-Fr, 8-16:00 Uhr)
Menü
Mehr Varianten
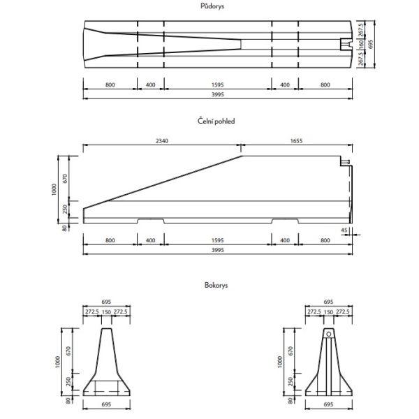
Zweiseitige Betonschutzplanke TYP100 – rechtes Endstück, 4000×695×1000 mm
Zweiseitige Betonschutzplanke TYP100 – rechtes Endstück, 4000×695×1000 mm
Zweiseitige Betonschutzplanke TYP100 – rechtes Endstück, 4000×695×1000 mm
Zweiseitige Betonschutzplanke TYP100 – rechtes Endstück, 4000×695×1000 mm

Zweiseitige Betonschutzplanke TYP100 – rechtes Endstück, 4000×695×1000 mm

Code: CB-300054_1
Breite (mm) 695
Gewicht (kg) 2576
Höhe (mm) 1000
Länge (mm) 4000
Material Beton
Preis mit MwSt. 0,06 
0,05 
ZUM WARENKORB (Stk.):

Produktbeschreibung

Die zweiseitige Betonschutzplanke TYP80 ist aus hochfestem Porenbeton der Festigkeitsklasse C45/55 hergestellt und erfüllt die Anforderungen der Klasse XF4, XD3 gemäß EN 206-1.


Die Elemente werden in der natürlichen grauen Betonfarbe oder in der gelb-schwarz schraffierten Farbe hergestellt. Die Barrieren sind ein dauerhaftes, modernes und hochwirksames Mittel zur Korrektur des Weges von Straßenfahrzeugen und deren möglichem Eindringen in die Gegenfahrbahn oder Verlassen des Straßenkörpers.Sie können dauerhaft oder vorübergehend installiert werden.

Das Betonschutzplanken besteht aus einzelnen Stahlbetonelementen, die untereinander gelenkig verbunden sind und so ein statisch tragendes Kettenglied bilden.

Sie werden in einer Standardhöhe von 1000 mm und in ein- oder beidseitiger Ausführung hergestellt. Betonchutzplanken sind ein Straßenrückhaltesystem gemäß EN 1317-1 und TKP Kap. 11.

Die Betonschutzplanke ist derzeit das beste und effizienteste System in Bezug auf seine Rückhaltefunktion. Sie ist in die Funktionsklasse H3 eingestuft, was der in EN 1317-2 definierten Fahrzeugrückhaltestufe entspricht.


Einbau | Ausführung:

  • Bei der Anbringung der Betonschranken sind die Vorschriften der Straßenbaubehörden über den Straßenquerschnitt zu beachten (am Anfang und am Ende jeder Schutzkette sind Rampenelemente vorzusehen - äußerster Teil). 
  • Die Montagefläche ist in der Regel die Fahrbahn, der Gehweg oder befestigte Parkflächen. 
  • Als Montagefläche eignet sich auch eine unbefestigte Schicht oder eine mechanisch stabilisierte Oberschicht.
  • Die Montage der einzelnen Komponenten erfolgt meist direkt vom Lkw aus mit einem Kranarm oder einem Gabelstapler auf der Baustelle. 
  • Die entsprechenden Tragschlaufen werden in zwei dafür vorgesehene M16-Montageanker eingeschraubt und das Element per Kran angehoben und abgesetzt.
  • Die Verbindung der Elemente erfolgt dann mit den mitgelieferten Kupplungen und Schrauben.
  • Zusätzlich lassen sich die Handlaufgriffe an den Montageankern befestigen. 
  • An den Sonderschienen können auch Werbeschilder oder ähnliches angebracht werden.

Brauchen Sie Hilfe bei der Auswahl?

Rufen Sie uns gerne an

+421 948 049 158 (Mo-Fr, 8-16:00 Uhr)