0

Lieblingsprodukte:

0
  • Sie haben keine Artikel in Ihrer Merkliste.

+421 948 049 158(Mo-Fr, 8-16:00 Uhr)
Menü

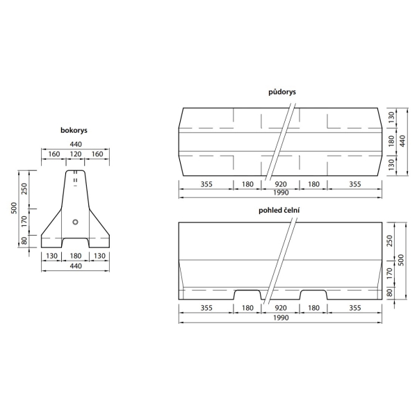
Betonschutzplanke 50 HS01CSB, schraffiert – Mittelstück, gelb–schwarz, 2000×440×500 mm

Code: CB-307414_2
Breite (mm) 440
Farbe Gelb-Schwarz
Gewicht (kg) 525
Höhe (mm) 500
Länge (mm) 2000
Material Beton
Preis mit MwSt. 507,92 
419,77 
ZUM WARENKORB (Stk.):

Produktbeschreibung

Die Endstücke der Serie 50 HS01CSB werden aus hochfestem Porenbeton der Festigkeitsklasse C45/55 gefertigt und erfüllen die Anforderungen der Expositionsklassen XF4, XD3 nach EN 206-1. Sie sind in naturgrauer Ausführung oder mit gelb-schwarzer Streifenmarkierung erhältlich.

Einsatzbereiche

  • sichere Abtrennung von Fahrbahnen, Fußgängerzonen oder Radwegen

  • Bildung geschützter Inseln und Kreisverkehre

  • Verkehrsberuhigung in Wohn- und Fußgängerbereichen

  • Einrichtung von Umleitungen oder Sperrzonen im Stadtverkehr

Die Schutzplanken sind für Geschwindigkeiten bis 50 km/h ausgelegt und zeichnen sich durch hohe Festigkeit sowie extreme Beständigkeit gegenüber Wasser und chemischen Enteisungsmitteln aus. Jedes System ist für maximale Vielseitigkeit konzipiert und getestet und deckt verschiedene Montagearten ab.

Das System erlaubt eine Drehung der einzelnen Elemente und eignet sich daher auch zur Realisierung von Kreisverkehren. Es handelt sich nicht um ein nach EN 1317-5 zertifiziertes Fertigprodukt. Am Boden integrierte Längs- und Querrinnen dienen zur Entwässerung; die Querrinne kann zudem für das Handling mit Hubwagen oder zur Geländermontage genutzt werden.

Montage

  • Einhaltung der Vorgaben der Straßenbaubehörden (am Anfang und Ende einer Schutzkette sind Rampenelemente vorzusehen).

  • Montageflächen: Fahrbahnen, Gehwege, Parkplätze oder befestigte/unbefestigte Oberflächen.

  • Verlegung erfolgt in der Regel direkt vom Lkw mit Kran oder Gabelstapler.

  • Für das Heben werden Tragschlaufen in die vorgesehenen M16-Montageanker eingeschraubt.

  • Die Verbindung der Elemente erfolgt mit den mitgelieferten Kupplungen und Schrauben.

  • An den Montageankern lassen sich Handläufe befestigen, auf Wunsch auch Werbeschilder oder ähnliche Zusatzbauteile.

Brauchen Sie Hilfe bei der Auswahl?

Rufen Sie uns gerne an

+421 948 049 158 (Mo-Fr, 8-16:00 Uhr)